藤沢市葛原デザイナーズハウス

3,580万円

神奈川県藤沢市葛原2310-9

小田急江ノ島線「湘南台」駅徒歩40分

価格
3,580万円
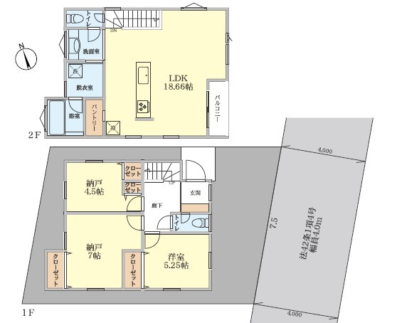
間取り
3LDK
土地面積
82.83㎡
所在地
神奈川県藤沢市葛原2310-9
交通

小田急江ノ島線湘南台」駅 徒歩40分

建物面積
87.92㎡
築年月
2024年6月(築1年)

現地見学会

日時 2025年4月1日 ~ 2025年4月30日  10:00 ~ 18:00
  • ※事前に必ず予約してください
  • ・日程/毎週土日祝(ご内覧ご希望の日時をお知らせください。)
    ・時間/10:00~18:00
    ・平日・休日問わず、いつでもお待ちしております。
    ◇クイックコース◇
    忙しい方や、特定の物件に興味がある方向けに、現地もしくは物件最寄り駅待ち合わせにて15分程度でのスピーディーな内覧コースです。

    ◇スタンダードコース◇
    室内をゆっくりとご覧いただきたい方におすすめです。30分から1時間程度の内覧時間を確保し、周辺環境や類似物件の案内も可能です。

    ◇じっくりコース◇
    弊社にご来社頂き、ご希望の条件やローンの打ち合わせをさせて頂きます。
    その後、ご希望の条件に合う物件のご案内をさせて頂きます。

    ※居住中の物件や鍵の手配が必要な場合、売主様との日時調整が必要となることがあります。
    ・内覧をご希望の前日までにご連絡いただければ、スムーズに対応いたします。
    ・内覧の際には、弊社のご案内車両でお迎えに伺います。また、ご指定の駅や現地での待ち合わせも可能です。
    ◆詳細・ご予約はこちらまで◆↓↓↓
    ・TEL 0463-73-5700(火曜・水曜定休)
    ・Mail nagasawa@city-c.net (長沢)

物件の特徴

  • TVモニタ付きインターホン

  • カウンターキッチン

  • 浴室乾燥機

セールスポイント

【即日ご内覧可能です!】
子育て世帯はピッタリな住環境。
スーパーやコンビニ、ショッピング施設等充実したエリアで大変な子育ての負担を少しでも減らせます!

住む家を見ずに買う人は少ないですよね。
物件の特徴や立地周辺環境は、実際にみてご判断いただければと思います。
まずはご内覧予約!お気軽にお問い合わせください。

基本情報

販売戸数
-
総戸数
-
間取り / 詳細
3LDK
向き
建物面積(坪数)
87.92㎡(26.59坪)
土地面積(坪数)
82.83㎡(25.05坪)
建ぺい率 /
容積率
60%/200%
築年月
2024年6月(築1年)
土地権利
所有権
土地
(敷金 / 保証金)
- / -
建物構造
木造 / 2階建
傾斜地部分面積
-
路地状敷地
-
私道負担面積
-
セットバック
高圧線下面積
-
施工会社
-
用途地域
準工業
地目 / 地勢
宅地 / 平坦
接道状況
一方(東 公道 4.0m)
国土法届出要否
不要
都市計画
市街化区域
総区画数 /
販売区画数
-/-
現況
空家
その他
法令上の制限
-
取引態様
仲介
引渡し
即時
取引条件の
有効期限
2025年11月29日

設備条件

設備条件
  • 現地見学会 / プロパンガス / 公営水道 / 公共下水 / 24時間換気システム / 駐輪場 / 食器洗い乾燥機 / カウンターキッチン / 浴室乾燥機 / トイレ2ヶ所 / ウォークインクロゼット / TVモニタ付インターホン / 複層ガラス
設備(その他)
    -

その他

物件番号
93607411
管理コード
-
建築確認番号
-
情報更新日
2025年11月15日
次回更新予定日
2025年11月29日
取扱会社
  • 株式会社 シティクリエイション
  • 神奈川県平塚市見附町29-13 
  • TEL:0463-73-5700
  • 神奈川県知事 (2) 第029987号
  • 公益社団法人全国宅地建物取引業保証協会会員
    公益社団法人神奈川県宅地建物取引業協会会員
    公益社団法人首都圏不動産公正取引協議会加盟

周辺施設

  • セブンイレブン 藤沢菖蒲沢店の画像

    コンビニエンスストア

    セブンイレブン 藤沢菖蒲沢店

    303m(4分)

  • スターバックスコーヒー 藤沢菖蒲沢店の画像

    喫茶店・カフェ

    スターバックスコーヒー 藤沢菖蒲沢店

    390m(5分)

  • ミニストップ 藤沢大平店の画像

    コンビニエンスストア

    ミニストップ 藤沢大平店

    537m(7分)

  • マクドナルド 藤沢菖蒲沢店の画像

    ファーストフード

    マクドナルド 藤沢菖蒲沢店

    830m(11分)

支払いシミュレーション

月々の支払額
9.6
購入希望物件価格
万円
頭金
万円
金利
%
返済額(ボーナス1回分)
万円
返済期間

※ボーナスは自動で年2回分で計算されます。

近隣の物件

  1. 藤沢市大庭 デザイナーズ分譲住宅A棟

    藤沢市大庭

    3LDK (93.98㎡)

    5,680万円

  2. 藤沢市藤が岡3丁目 新築一戸建て 全2棟

    藤沢市藤が岡3丁目

    3LDK (137.49㎡)

    7,180万円

  3. 藤沢市鵠沼桜が岡2丁目8-9新築戸建

    藤沢市鵠沼桜が岡2丁目

    4LDK (106.34㎡)

    7,380万円

  4. 藤沢市城南1丁目新築戸建て A棟

    藤沢市城南1丁目

    2SLDK (98.54㎡)

    6,980万円

藤沢市葛原デザイナーズハウス

藤沢市葛原デザイナーズハウス

3,580万円

-

3LDK(87.92㎡)

お気軽にお問い合わせください

LINEからお問い合わせ 無料お問い合わせ

株式会社 シティクリエイション

0463-73-5700

9:30~18:00

(休:火曜・水曜)